集团公告

您的位置:首页 > 集团新闻 > 集团公告

污染源监测信息披露

时间:2022-10-15浏览:


污染源监测信息披露


单位名称:山东钢铁集团永锋临港有限公司

统一社会信用代码:91371300MA3PH4Y80L

行业类别:黑色金属冶炼和压延加工

法定代表人(实际负责人):逄晓男

技术负责人:杨永鑫

联系电话:15588936518

 


 

 

 

编制日期:20221015

 

 

 

 

、企业基本信息

1-1企业基本信息表

内容

备注

企业名称

山东钢铁集团永锋临港有限公司

 

社会信用代码

91371300MA3PH4Y80L

 

注册地址

山东省临沂市临港开发区坪上镇中兴商务企业发展中心

 

生产地址

临沂临港经济开发区高端不锈钢与先进特钢园区内

 

生产经营场所中心经度

119°4′18.44″

 

生产经营场所中心纬度

35°8′11.11″

 

邮政编码

276600

 

行业类别

黑色金属冶炼和压延加工业

 

法定代表人

逄晓男

 

环保联系人

吕慧

 

联系电话

15589195196

 

排污许可编号

91371300MA3PH4Y80L001P

 

环评批复文号

临港行审投决字[2020]59

 

自行监测委托机构名称

山东君成环境检测有限公司、山东求真环境检测有限公司

 


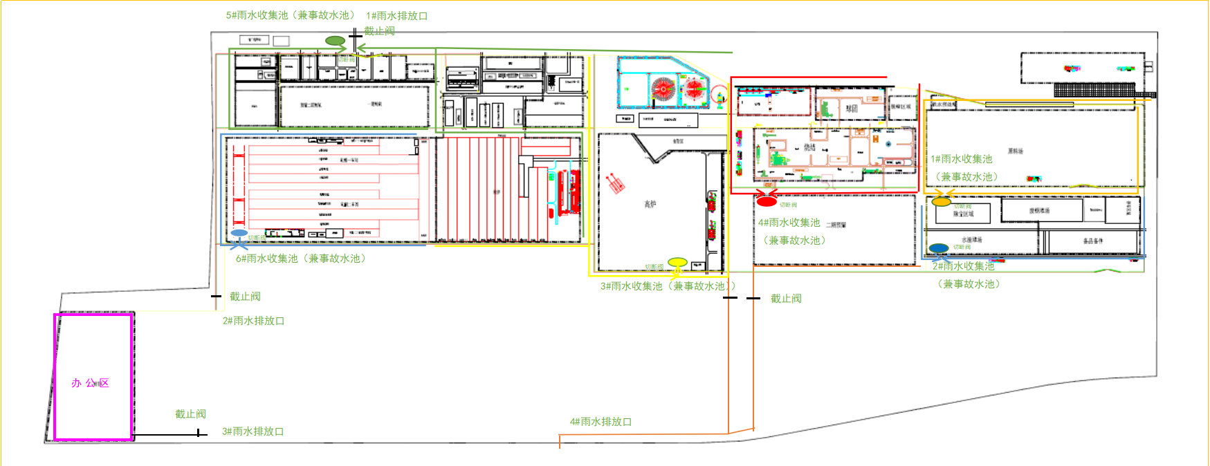
厂区平面布置图


 


二、自行监测方案

废气自行监测内容表

监测项目

排放口

监测点位

监测频次

执行排放标准

标准限值

监测方法

分析仪器

备注

颗粒物

DA001

原料1#除尘

1次/年

钢铁工业大气污染物排放标准DB37/990-2019

10mg/Nm3

固定污染源排气中颗粒物测定与气态污染物采样方法 GB/T 16157-1996,固定污染源废气低浓度颗粒物的测定重量HJ 836-2017

自动烟尘(气)测试仪

手工监测

颗粒物

DA002

原料2#除尘

1次/年

钢铁工业大气污染物排放标准DB37/990-2019

10mg/Nm3

固定污染源排气中颗粒物测定与气态污染物采样方法 GB/T 16157-1996,固定污染源废气低浓度颗粒物的测定重量HJ 836-2017

自动烟尘(气)测试仪

手工监测

颗粒物

DA003

原料3#除尘

1次/年

钢铁工业大气污染物排放标准DB37/990-2019

10mg/Nm3

固定污染源排气中颗粒物测定与气态污染物采样方法 GB/T 16157-1996,固定污染源废气低浓度颗粒物的测定重量HJ 836-2017

自动烟尘(气)测试仪

手工监测

颗粒物

DA004

原料4#除尘

1次/年

钢铁工业大气污染物排放标准DB37/990-2019

10mg/Nm3

固定污染源排气中颗粒物测定与气态污染物采样方法 GB/T 16157-1996,固定污染源废气低浓度颗粒物的测定重量HJ 836-2017

自动烟尘(气)测试仪

手工监测

颗粒物

DA005

原料5#除尘

1次/年

钢铁工业大气污染物排放标准DB37/990-2019

10mg/Nm3

固定污染源排气中颗粒物测定与气态污染物采样方法 GB/T 16157-1996,固定污染源废气低浓度颗粒物的测定重量HJ 836-2017

自动烟尘(气)测试仪

手工监测

颗粒物

DA006

原料6#除尘

1次/年

钢铁工业大气污染物排放标准DB37/990-2019

10mg/Nm3

固定污染源排气中颗粒物测定与气态污染物采样方法 GB/T 16157-1996,固定污染源废气低浓度颗粒物的测定重量HJ 836-2017

自动烟尘(气)测试仪

手工监测

颗粒物

DA007

原料7#除尘

1次/年

钢铁工业大气污染物排放标准DB37/990-2019

10mg/Nm3

固定污染源排气中颗粒物测定与气态污染物采样方法 GB/T 16157-1996,固定污染源废气低浓度颗粒物的测定重量HJ 836-2017

自动烟尘(气)测试仪

手工监测

颗粒物

DA008

原料8#除尘

1次/年

钢铁工业大气污染物排放标准DB37/990-2019

10mg/Nm3

固定污染源排气中颗粒物测定与气态污染物采样方法 GB/T 16157-1996,固定污染源废气低浓度颗粒物的测定重量HJ 836-2017

自动烟尘(气)测试仪

手工监测

颗粒物

DA058

原料9#除尘

1次/年

钢铁工业大气污染物排放标准DB37/990-2019

10mg/Nm3

固定污染源排气中颗粒物测定与气态污染物采样方法 GB/T 16157-1996,固定污染源废气低浓度颗粒物的测定重量HJ 836-2017

自动烟尘(气)测试仪

手工监测

颗粒物

DA059

原料10#除尘

1次/年

钢铁工业大气污染物排放标准DB37/990-2019

10mg/Nm3

固定污染源排气中颗粒物测定与气态污染物采样方法 GB/T 16157-1996,固定污染源废气低浓度颗粒物的测定重量HJ 836-2017

自动烟尘(气)测试仪

手工监测

颗粒物

DA060

原料11#除尘

1次/年

钢铁工业大气污染物排放标准DB37/990-2019

10mg/Nm3

固定污染源排气中颗粒物测定与气态污染物采样方法 GB/T 16157-1996,固定污染源废气低浓度颗粒物的测定重量HJ 836-2017

自动烟尘(气)测试仪

手工监测

颗粒物

DA069

原料12#除尘

1次/年

钢铁工业大气污染物排放标准DB37/990-2019

10mg/Nm3

固定污染源排气中颗粒物测定与气态污染物采样方法 GB/T 16157-1996,固定污染源废气低浓度颗粒物的测定重量HJ 836-2017

自动烟尘(气测试仪)

手工监测

铅及其化合物

DA009

烧结球团脱硫脱硝

1次/季

钢铁工业大气污染物排放标准DB37/990-2019

0.9mg/Nm3

固定污染源废气铅的测定火焰原子吸收分光光度法HJ 685

原子吸收分光光度计

手工监测

氮氧化物

DA009

烧结球团脱硫脱硝

自动监测

钢铁工业大气污染物排放标准DB37/990-2019

50mg/Nm3

固定污染源废气 氮氧化物的测定 非分散红外吸收法HJ 692-2014,固定污染源排气中氮氧化物的测定 紫外分光光度法 HJ/T 42-1999

烟气自动连续监测仪

 

氟化物

DA009

烧结球团脱硫脱硝

1次/季

钢铁工业大气污染物排放标准DB37/990-2019

3mg/Nm3

大气固定污染源 氟化物的测定 离子选择电极法HJ/T 67-2001

氟离子电极

手工监测

二氧化硫

DA009

烧结球团脱硫脱硝

自动监测

钢铁工业大气污染物排放标准DB37/990-2019

35mg/Nm3

固定污染源废气 二氧化硫的测定 非分散红外吸收法HJ 629-2011,固定污染源废气 二氧化硫的测定 便携式紫外吸收法HJ 1131-2020

烟气自动连续监测仪

 

二噁英类

DA009

烧结球团脱硫脱硝

1次/年

钢铁工业大气污染物排放标准DB37/990-2019

0.5ng-TEQ/m3

环境空气和废气 二噁英类的测定 同位素稀释高分辨气相色谱-高分辨质谱法HJ/T 77.2-2008

磁式质谱仪

手工监测

颗粒物

DA009

烧结球团脱硫脱硝

自动监测

钢铁工业大气污染物排放标准DB37/990-2019

10mg/Nm3

固定污染源排气中颗粒物测定与气态污染物采样方法 GB/T 16157-1996,固定污染源废气低浓度颗粒物的测定重量HJ 836-2017

烟气自动连续监测仪

 

颗粒物

DA061

活性炭1#除尘

1次/年

钢铁工业大气污染物排放标准DB37/990-2019

10mg/Nm3

固定污染源排气中颗粒物测定与气态污染物采样方法 GB/T 16157-1996,固定污染源废气低浓度颗粒物的测定重量HJ 836-2017

自动烟尘(气)测试仪

手工监测

颗粒物

DA062

活性炭2#除尘

1次/年

钢铁工业大气污染物排放标准DB37/990-2019

10mg/Nm3

固定污染源排气中颗粒物测定与气态污染物采样方法 GB/T 16157-1996,固定污染源废气低浓度颗粒物的测定重量HJ 836-2017

自动烟尘(气)测试仪

手工监测

颗粒物

DA010

烧结机尾除尘

自动监测

钢铁工业大气污染物排放标准DB37/990-2019

10mg/Nm3

固定污染源排气中颗粒物测定与气态污染物采样方法 GB/T 16157-1996,固定污染源废气低浓度颗粒物的测定重量HJ 836-2017

烟气自动连续监测仪

 

颗粒物

DA011

烧结配料除尘

1次/季

钢铁工业大气污染物排放标准DB37/990-2019

10mg/Nm3

固定污染源排气中颗粒物测定与气态污染物采样方法 GB/T 16157-1996,固定污染源废气低浓度颗粒物的测定重量HJ 836-2017

自动烟尘(气)测试仪

手工监测

颗粒物

DA012

烧结燃破除尘

1次/年

钢铁工业大气污染物排放标准DB37/990-2019

10mg/Nm3

固定污染源排气中颗粒物测定与气态污染物采样方法 GB/T 16157-1996,固定污染源废气低浓度颗粒物的测定重量HJ 836-2017

自动烟尘(气)测试仪

手工监测

颗粒物

DA013

烧结筛分除尘

1次/季

钢铁工业大气污染物排放标准DB37/990-2019

10mg/Nm3

固定污染源排气中颗粒物测定与气态污染物采样方法 GB/T 16157-1996,固定污染源废气低浓度颗粒物的测定重量HJ 836-2017

自动烟尘(气)测试仪

手工监测

颗粒物

DA014

烧结一混除尘

1次/年

钢铁工业大气污染物排放标准DB37/990-2019

10mg/Nm3

固定污染源排气中颗粒物测定与气态污染物采样方法 GB/T 16157-1996,固定污染源废气低浓度颗粒物的测定重量HJ 836-2017

自动烟尘(气)测试仪

手工监测

颗粒物

DA015

烧结二混除尘

1次/年

钢铁工业大气污染物排放标准DB37/990-2019

10mg/Nm3

固定污染源排气中颗粒物测定与气态污染物采样方法 GB/T 16157-1996,固定污染源废气低浓度颗粒物的测定重量HJ 836-2017

自动烟尘(气)测试仪

手工监测

颗粒物

DA016

球团烘干机除尘

1次/年

钢铁工业大气污染物排放标准DB37/990-2019

10mg/Nm3

固定污染源排气中颗粒物测定与气态污染物采样方法 GB/T 16157-1996,固定污染源废气低浓度颗粒物的测定重量HJ 836-2017

自动烟尘(气)测试仪

手工监测

颗粒物

DA017

球团干燥一段除尘

1次/年

钢铁工业大气污染物排放标准DB37/990-2019

10mg/Nm3

固定污染源排气中颗粒物测定与气态污染物采样方法 GB/T 16157-1996,固定污染源废气低浓度颗粒物的测定重量HJ 836-2017

自动烟尘(气)测试仪

手工监测

颗粒物

DA018

球团环境除尘

1次/年

钢铁工业大气污染物排放标准DB37/990-2019

10mg/Nm3

固定污染源排气中颗粒物测定与气态污染物采样方法 GB/T 16157-1996,固定污染源废气低浓度颗粒物的测定重量HJ 836-2017

自动烟尘(气)测试仪

手工监测

颗粒物

DA019

1#高炉矿槽除尘

自动监测

钢铁工业大气污染物排放标准DB37/990-2019

10mg/Nm3

固定污染源排气中颗粒物测定与气态污染物采样方法 GB/T 16157-1996,固定污染源废气低浓度颗粒物的测定重量HJ 836-2017

烟气自动连续监测仪

 

颗粒物

DA020

1#高炉出铁场除尘

自动监测

钢铁工业大气污染物排放标准DB37/990-2019

10mg/Nm3

固定污染源排气中颗粒物测定与气态污染物采样方法 GB/T 16157-1996,固定污染源废气低浓度颗粒物的测定重量HJ 836-2017

烟气自动连续监测仪

 

颗粒物

DA021

1#喷煤收尘器

1次/年

钢铁工业大气污染物排放标准DB37/990-2019

10mg/Nm3

固定污染源排气中颗粒物测定与气态污染物采样方法 GB/T 16157-1996,固定污染源废气低浓度颗粒物的测定重量HJ 836-2017

自动烟尘(气)测试仪

手工监测

颗粒物

DA022

2#高炉矿槽除尘

自动监测

钢铁工业大气污染物排放标准DB37/990-2019

10mg/Nm3

固定污染源排气中颗粒物测定与气态污染物采样方法 GB/T 16157-1996,固定污染源废气低浓度颗粒物的测定重量HJ 836-2017

烟气自动连续监测仪

 

颗粒物

DA023

2#高炉出铁场除尘

自动监测

钢铁工业大气污染物排放标准DB37/990-2019

10mg/Nm3

固定污染源排气中颗粒物测定与气态污染物采样方法 GB/T 16157-1996,固定污染源废气低浓度颗粒物的测定重量HJ 836-2017

烟气自动连续监测仪

 

颗粒物

DA024

2#喷煤收尘器

1次/年

钢铁工业大气污染物排放标准DB37/990-2019

10mg/Nm3

固定污染源排气中颗粒物测定与气态污染物采样方法 GB/T 16157-1996,固定污染源废气低浓度颗粒物的测定重量HJ 836-2017

自动烟尘(气)测试仪

手工监测

氮氧化物

DA025

1#高炉热风炉脱硫

自动监测

钢铁工业大气污染物排放标准DB37/990-2019

150mg/Nm3

固定污染源废气 氮氧化物的测定 非分散红外吸收法HJ 692-2014,固定污染源排气中氮氧化物的测定 紫外分光光度法 HJ/T 42-1999

烟气自动连续监测仪

 

二氧化硫

DA025

1#高炉热风炉脱硫

自动监测

钢铁工业大气污染物排放标准DB37/990-2019

50mg/Nm3

固定污染源废气 二氧化硫的测定 非分散红外吸收法HJ 629-2011,固定污染源废气 二氧化硫的测定 便携式紫外吸收法HJ 1131-2020

烟气自动连续监测仪

 

颗粒物

DA025

1#高炉热风炉脱硫

自动监测

钢铁工业大气污染物排放标准DB37/990-2019

10mg/Nm3

固定污染源排气中颗粒物测定与气态污染物采样方法 GB/T 16157-1996,固定污染源废气低浓度颗粒物的测定重量HJ 836-2017

烟气自动连续监测仪

 

氮氧化物

DA026

2#高炉热风炉脱硫

自动监测

钢铁工业大气污染物排放标准DB37/990-2019

150mg/Nm3

固定污染源废气 氮氧化物的测定 非分散红外吸收法HJ 692-2014,固定污染源排气中氮氧化物的测定 紫外分光光度法 HJ/T 42-1999

烟气自动连续监测仪

 

二氧化硫

DA026

2#高炉热风炉脱硫

自动监测

钢铁工业大气污染物排放标准DB37/990-2019

50mg/Nm3

固定污染源废气 二氧化硫的测定 非分散红外吸收法HJ 629-2011,固定污染源废气 二氧化硫的测定 便携式紫外吸收法HJ 1131-2020

烟气自动连续监测仪

 

颗粒物

DA026

2#高炉热风炉脱硫

自动监测

钢铁工业大气污染物排放标准DB37/990-2019

10mg/Nm3

固定污染源排气中颗粒物测定与气态污染物采样方法 GB/T 16157-1996,固定污染源废气低浓度颗粒物的测定重量HJ 836-2017

烟气自动连续监测仪

 

颗粒物

DA028

1#转炉一次除尘

1次/年

钢铁工业大气污染物排放标准DB37/990-2019

20mg/Nm3

固定污染源排气中颗粒物测定与气态污染物采样方法 GB/T 16157-1996,固定污染源废气低浓度颗粒物的测定重量HJ 836-2017

自动烟尘(气)测试仪

手工监测

颗粒物

DA029

1#转炉二次除尘

自动监测

钢铁工业大气污染物排放标准DB37/990-2019

10mg/Nm3

固定污染源排气中颗粒物测定与气态污染物采样方法 GB/T 16157-1996,固定污染源废气低浓度颗粒物的测定重量HJ 836-2017

烟气自动连续监测仪

 

颗粒物

DA030

转炉三次除尘

1次/季

钢铁工业大气污染物排放标准DB37/990-2019

10mg/Nm3

固定污染源排气中颗粒物测定与气态污染物采样方法 GB/T 16157-1996,固定污染源废气低浓度颗粒物的测定重量HJ 836-2017

自动烟尘(气)测试仪

手工监测

颗粒物

DA031

转炉上料除尘

1次/年

钢铁工业大气污染物排放标准DB37/990-2019

10mg/Nm3

固定污染源排气中颗粒物测定与气态污染物采样方法 GB/T 16157-1996,固定污染源废气低浓度颗粒物的测定重量HJ 836-2017

自动烟尘(气)测试仪

手工监测

颗粒物

DA032

2#转炉一次除尘

1次/年

钢铁工业大气污染物排放标准DB37/990-2019

20mg/Nm3

固定污染源排气中颗粒物测定与气态污染物采样方法 GB/T 16157-1996,固定污染源废气低浓度颗粒物的测定重量HJ 836-2017

自动烟尘(气)测试仪

手工监测

颗粒物

DA033

2#转炉二次除尘

自动监测

钢铁工业大气污染物排放标准DB37/990-2019

10mg/Nm3

固定污染源排气中颗粒物测定与气态污染物采样方法 GB/T 16157-1996,固定污染源废气低浓度颗粒物的测定重量HJ 836-2017

烟气自动连续监测仪

 

颗粒物

DA037

连铸大包除尘

1次/年

钢铁工业大气污染物排放标准DB37/990-2019

10mg/Nm3

固定污染源排气中颗粒物测定与气态污染物采样方法 GB/T 16157-1996,固定污染源废气低浓度颗粒物的测定重量HJ 836-2017

自动烟尘(气)测试仪

手工监测

颗粒物

DA038

石灰窑受料槽除尘

1次/年

钢铁工业大气污染物排放标准DB37/990-2019

10mg/Nm3

固定污染源排气中颗粒物测定与气态污染物采样方法 GB/T 16157-1996,固定污染源废气低浓度颗粒物的测定重量HJ 836-2017

自动烟尘(气)测试仪

手工监测

氮氧化物

DA039

1#石灰窑焙烧除尘

自动监测

区域性大气污染物综合排放标准DB37/2376-2019

100mg/Nm3

固定污染源废气 氮氧化物的测定 非分散红外吸收法HJ 692-2014,固定污染源排气中氮氧化物的测定 紫外分光光度法 HJ/T 42-1999

烟气自动连续监测仪

 

二氧化硫

DA039

1#石灰窑焙烧除尘

自动监测

区域性大气污染物综合排放标准DB37/2376-2019

50mg/Nm3

固定污染源废气 二氧化硫的测定 非分散红外吸收法HJ 629-2011,固定污染源废气 二氧化硫的测定 便携式紫外吸收法HJ 1131-2020

烟气自动连续监测仪

 

颗粒物

DA039

1#石灰窑焙烧除尘

自动监测

钢铁工业大气污染物排放标准DB37/990-2019

10mg/Nm3

固定污染源排气中颗粒物测定与气态污染物采样方法 GB/T 16157-1996,固定污染源废气低浓度颗粒物的测定重量HJ 836-2017

烟气自动连续监测仪

 

氮氧化物

DA070

2#石灰窑焙烧除尘

自动监测

区域性大气污染物综合排放标准DB37/2376-2019

100mg/Nm3

固定污染源废气 氮氧化物的测定 非分散红外吸收法HJ 692-2014,固定污染源排气中氮氧化物的测定 紫外分光光度法 HJ/T 42-1999

烟气自动连续监测仪

 

二氧化硫

DA070

2#石灰窑焙烧除尘

自动监测

区域性大气污染物综合排放标准DB37/2376-2019

50mg/Nm3

固定污染源废气 二氧化硫的测定 非分散红外吸收法HJ 629-2011,固定污染源废气 二氧化硫的测定 便携式紫外吸收法HJ 1131-2020

烟气自动连续监测仪

 

颗粒物

DA070

2#石灰窑焙烧除尘

自动监测

钢铁工业大气污染物排放标准DB37/990-2019

10mg/Nm3

固定污染源排气中颗粒物测定与气态污染物采样方法 GB/T 16157-1996,固定污染源废气低浓度颗粒物的测定重量HJ 836-2017

烟气自动连续监测仪

 

颗粒物

DA040

石灰窑原料除尘

1次/年

钢铁工业大气污染物排放标准DB37/990-2019

10mg/Nm3

固定污染源排气中颗粒物测定与气态污染物采样方法 GB/T 16157-1996,固定污染源废气低浓度颗粒物的测定重量HJ 836-2017

自动烟尘(气)测试仪

手工监测

颗粒物

DA041

石灰窑成品除尘

1次/年

钢铁工业大气污染物排放标准DB37/990-2019

10mg/Nm3

固定污染源排气中颗粒物测定与气态污染物采样方法 GB/T 16157-1996,固定污染源废气低浓度颗粒物的测定重量HJ 836-2017

自动烟尘(气)测试仪

手工监测

氮氧化物

DA042

1#加热炉空烟

1次/季

钢铁工业大气污染物排放标准DB37/990-2019

150mg/Nm3

固定污染源废气 氮氧化物的测定 非分散红外吸收法HJ 692-2014,固定污染源排气中氮氧化物的测定 紫外分光光度法 HJ/T 42-1999

紫外差分烟气综合分析仪

手工监测

二氧化硫

DA042

1#加热炉空烟

1次/季

钢铁工业大气污染物排放标准DB37/990-2019

50mg/Nm3

固定污染源废气 二氧化硫的测定 非分散红外吸收法HJ 629-2011,固定污染源废气 二氧化硫的测定 便携式紫外吸收法HJ 1131-2020

紫外差分烟气综合分析仪

手工监测

颗粒物

DA042

1#加热炉空烟

1次/季

钢铁工业大气污染物排放标准DB37/990-2019

10mg/Nm3

固定污染源排气中颗粒物测定与气态污染物采样方法 GB/T 16157-1996,固定污染源废气低浓度颗粒物的测定重量HJ 836-2017

自动烟尘(气)测试仪

手工监测

氮氧化物

DA043

1#加热炉煤烟

1次/季

钢铁工业大气污染物排放标准DB37/990-2019

150mg/Nm3

固定污染源废气 氮氧化物的测定 非分散红外吸收法HJ 692-2014,固定污染源排气中氮氧化物的测定 紫外分光光度法 HJ/T 42-1999

紫外差分烟气综合分析仪

手工监测

二氧化硫

DA043

1#加热炉煤烟

1次/季

钢铁工业大气污染物排放标准DB37/990-2019

50mg/Nm3

固定污染源废气 二氧化硫的测定 非分散红外吸收法HJ 629-2011,固定污染源废气 二氧化硫的测定 便携式紫外吸收法HJ 1131-2020

紫外差分烟气综合分析仪

手工监测

颗粒物

DA043

1#加热炉煤烟

1次/季

钢铁工业大气污染物排放标准DB37/990-2019

10mg/Nm3

固定污染源排气中颗粒物测定与气态污染物采样方法 GB/T 16157-1996,固定污染源废气低浓度颗粒物的测定重量HJ 836-2017

自动烟尘(气)测试仪

手工监测

氮氧化物

DA044

2#加热炉空烟

1次/季

钢铁工业大气污染物排放标准DB37/990-2019

150mg/Nm3

固定污染源废气 氮氧化物的测定 非分散红外吸收法HJ 692-2014,固定污染源排气中氮氧化物的测定 紫外分光光度法 HJ/T 42-1999

紫外差分烟气综合分析仪

手工监测

二氧化硫

DA044

2#加热炉空烟

1次/季

钢铁工业大气污染物排放标准DB37/990-2019

50mg/Nm3

固定污染源废气 二氧化硫的测定 非分散红外吸收法HJ 629-2011,固定污染源废气 二氧化硫的测定 便携式紫外吸收法HJ 1131-2020

紫外差分烟气综合分析仪

手工监测

颗粒物

DA044

2#加热炉空烟

1次/季

钢铁工业大气污染物排放标准DB37/990-2019

10mg/Nm3

固定污染源排气中颗粒物测定与气态污染物采样方法 GB/T 16157-1996,固定污染源废气低浓度颗粒物的测定重量HJ 836-2017

自动烟尘(气)测试仪

手工监测

氮氧化物

DA045

2#加热炉煤烟

1次/季

钢铁工业大气污染物排放标准DB37/990-2019

150mg/Nm3

固定污染源废气 氮氧化物的测定 非分散红外吸收法HJ 692-2014,固定污染源排气中氮氧化物的测定 紫外分光光度法 HJ/T 42-1999

紫外差分烟气综合分析仪

手工监测

二氧化硫

DA045

2#加热炉煤烟

1次/季

钢铁工业大气污染物排放标准DB37/990-2019

50mg/Nm3

固定污染源废气 二氧化硫的测定 非分散红外吸收法HJ 629-2011,固定污染源废气 二氧化硫的测定 便携式紫外吸收法HJ 1131-2020

紫外差分烟气综合分析仪

手工监测

颗粒物

DA045

2#加热炉煤烟

1次/季

钢铁工业大气污染物排放标准DB37/990-2019

10mg/Nm3

固定污染源排气中颗粒物测定与气态污染物采样方法 GB/T 16157-1996,固定污染源废气 二氧化硫的测定 便携式紫外吸收法HJ 1131-2020

自动烟尘(气)测试仪

手工监测

氮氧化物

DA046

3#加热炉空烟

1次/季

钢铁工业大气污染物排放标准DB37/990-2019

150mg/Nm3

固定污染源废气 氮氧化物的测定 非分散红外吸收法HJ 692-2014,固定污染源排气中氮氧化物的测定 紫外分光光度法 HJ/T 42-1999

紫外差分烟气综合分析仪

手工监测

二氧化硫

DA046

3#加热炉空烟

1次/季

钢铁工业大气污染物排放标准DB37/990-2019

50mg/Nm3

固定污染源废气 二氧化硫的测定 非分散红外吸收法HJ 629-2011,固定污染源废气 二氧化硫的测定 便携式紫外吸收法HJ 1131-2020

紫外差分烟气综合分析仪

手工监测

颗粒物

DA046

3#加热炉空烟

1次/季

钢铁工业大气污染物排放标准DB37/990-2019

10mg/Nm3

固定污染源排气中颗粒物测定与气态污染物采样方法 GB/T 16157-1996,固定污染源废气低浓度颗粒物的测定重量HJ 836-2017

自动烟尘(气)测试仪

手工监测

氮氧化物

DA047

3#加热炉煤烟

1次/季

钢铁工业大气污染物排放标准DB37/990-2019

150mg/Nm3

固定污染源废气 氮氧化物的测定 非分散红外吸收法HJ 692-2014,固定污染源排气中氮氧化物的测定 紫外分光光度法 HJ/T 42-1999

紫外差分烟气综合分析仪

手工监测

二氧化硫

DA047

3#加热炉煤烟

1次/季

钢铁工业大气污染物排放标准DB37/990-2019

50mg/Nm3

固定污染源废气 二氧化硫的测定 非分散红外吸收法HJ 629-2011,固定污染源废气 二氧化硫的测定 便携式紫外吸收法HJ 1131-2020

紫外差分烟气综合分析仪

手工监测

颗粒物

DA047

3#加热炉煤烟

1次/季

钢铁工业大气污染物排放标准DB37/990-2019

10mg/Nm3

固定污染源排气中颗粒物测定与气态污染物采样方法 GB/T 16157-1996,固定污染源废气低浓度颗粒物的测定重量HJ 836-2017

自动烟尘(气)测试仪

手工监测

氮氧化物

DA048

4#加热炉空烟

1次/季

钢铁工业大气污染物排放标准DB37/990-2019

150mg/Nm3

固定污染源废气 氮氧化物的测定 非分散红外吸收法HJ 692-2014,固定污染源排气中氮氧化物的测定 紫外分光光度法 HJ/T 42-1999

紫外差分烟气综合分析仪

手工监测

二氧化硫

DA048

4#加热炉空烟

1次/季

钢铁工业大气污染物排放标准DB37/990-2019

50mg/Nm3

固定污染源废气 二氧化硫的测定 非分散红外吸收法HJ 629-2011,固定污染源废气 二氧化硫的测定 便携式紫外吸收法HJ 1131-2020

紫外差分烟气综合分析仪

手工监测

颗粒物

DA048

4#加热炉空烟

1次/季

钢铁工业大气污染物排放标准DB37/990-2019

10mg/Nm3

固定污染源排气中颗粒物测定与气态污染物采样方法 GB/T 16157-1996,固定污染源废气低浓度颗粒物的测定重量HJ 836-2017

自动烟尘(气)测试仪

手工监测

氮氧化物

DA049

4#加热炉煤烟

1次/季

钢铁工业大气污染物排放标准DB37/990-2019

150mg/Nm3

固定污染源废气 氮氧化物的测定 非分散红外吸收法HJ 692-2014,固定污染源排气中氮氧化物的测定 紫外分光光度法 HJ/T 42-1999

紫外差分烟气综合分析仪

手工监测

二氧化硫

DA049

4#加热炉煤烟

1次/季

钢铁工业大气污染物排放标准DB37/990-2019

50mg/Nm3

固定污染源废气 二氧化硫的测定 非分散红外吸收法HJ 629-2011,固定污染源废气 二氧化硫的测定 便携式紫外吸收法HJ 1131-2020

紫外差分烟气综合分析仪

手工监测

颗粒物

DA049

4#加热炉煤烟

1次/季

钢铁工业大气污染物排放标准DB37/990-2019

10mg/Nm3

固定污染源排气中颗粒物测定与气态污染物采样方法 GB/T 16157-1996,固定污染源废气低浓度颗粒物的测定重量HJ 836-2017

自动烟尘(气)测试仪

手工监测

林格曼黑度

DA050

煤气发电锅炉脱硫

1次/季

山东省火电厂大气污染物排放标准DB37/ 664-2019

1级

固定污染源排放烟气黑度的测定 林格曼烟气黑度图法HJ/T 398-2007

格林曼黑度计

手工监测

氮氧化物

DA050

煤气发电锅炉脱硫

自动监测

山东省火电厂大气污染物排放标准DB37/ 664-2019

100mg/Nm3

固定污染源废气 氮氧化物的测定 非分散红外吸收法HJ 692-2014,固定污染源排气中氮氧化物的测定 紫外分光光度法 HJ/T 42-1999

烟气自动连续监测仪

 

二氧化硫

DA050

煤气发电锅炉脱硫

自动监测

山东省火电厂大气污染物排放标准DB37/ 664-2019

35mg/Nm3

固定污染源废气 二氧化硫的测定 非分散红外吸收法HJ 629-2011,固定污染源废气 二氧化硫的测定 便携式紫外吸收法HJ 1131-2020

烟气自动连续监测仪

 

颗粒物

DA050

煤气发电锅炉脱硫

自动监测

山东省火电厂大气污染物排放标准DB37/ 664-2019

5mg/Nm3

固定污染源排气中颗粒物测定与气态污染物采样方法 GB/T 16157-1996,固定污染源废气低浓度颗粒物的测定重量HJ 836-2017

烟气自动连续监测仪

 

氮氧化物

DA051

原料块矿烘干除尘器

1次/季

区域性大气污染物综合排放标准DB37/2376-2019

100mg/Nm3

固定污染源废气 氮氧化物的测定 非分散红外吸收法HJ 692-2014,固定污染源排气中氮氧化物的测定 紫外分光光度法 HJ/T 42-1999

紫外差分烟气综合分析仪

手工监测

二氧化硫

DA051

原料块矿烘干除尘器

1次/季

区域性大气污染物综合排放标准DB37/2376-2019

50mg/Nm3

固定污染源废气 二氧化硫的测定 非分散红外吸收法HJ 629-2011,固定污染源废气 二氧化硫的测定 便携式紫外吸收法HJ 1131-2020

紫外差分烟气综合分析仪

手工监测

颗粒物

DA051

原料块矿烘干除尘器

1次/季

区域性大气污染物综合排放标准DB37/2376-2019

10mg/Nm3

固定污染源排气中颗粒物测定与气态污染物采样方法 GB/T 16157-1996,固定污染源废气低浓度颗粒物的测定重量HJ 836-2017

自动烟尘(气)测试仪

手工监测

颗粒物

DA052

钢渣卸车间除尘

1次/年

钢铁工业大气污染物排放标准DB37/990-2019

10mg/Nm3

固定污染源排气中颗粒物测定与气态污染物采样方法 GB/T 16157-1996,固定污染源废气低浓度颗粒物的测定重量HJ 836-2017

自动烟尘(气)测试仪

手工监测

颗粒物

DA053

除尘灰处理窑头及上料除尘

1次/年

钢铁工业大气污染物排放标准DB37/990-2019

10mg/Nm3

固定污染源排气中颗粒物测定与气态污染物采样方法 GB/T 16157-1996,固定污染源废气低浓度颗粒物的测定重量HJ 836-2017

自动烟尘(气)测试仪

手工监测

氮氧化物

DA054

矿渣粉磨除尘

1次/季

区域性大气污染物综合排放标准DB37/2376-2019

100mg/Nm3

固定污染源废气 氮氧化物的测定 非分散红外吸收法HJ 692-2014,固定污染源排气中氮氧化物的测定 紫外分光光度法 HJ/T 42-1999

紫外差分烟气综合分析仪

手工监测

二氧化硫

DA054

矿渣粉磨除尘

1次/季

区域性大气污染物综合排放标准DB37/2376-2019

50mg/Nm3

固定污染源废气 二氧化硫的测定 非分散红外吸收法HJ 629-2011,固定污染源废气 二氧化硫的测定 便携式紫外吸收法HJ 1131-2020

紫外差分烟气综合分析仪

手工监测

颗粒物

DA054

矿渣粉磨除尘

1次/季

区域性大气污染物综合排放标准DB37/2376-2019

10mg/Nm3

固定污染源排气中颗粒物测定与气态污染物采样方法 GB/T 16157-1996,固定污染源废气低浓度颗粒物的测定重量HJ 836-2017

自动烟尘(气)测试仪

手工监测

颗粒物

DA063

微粉仓顶1#除尘

1次/年

钢铁工业大气污染物排放标准DB37/990-2019

10mg/Nm3

固定污染源排气中颗粒物测定与气态污染物采样方法 GB/T 16157-1996,固定污染源废气低浓度颗粒物的测定重量HJ 836-2017

自动烟尘(气)测试仪

手工监测

颗粒物

DA064

微粉仓顶2#除尘

1次/年

钢铁工业大气污染物排放标准DB37/990-2019

10mg/Nm3

固定污染源排气中颗粒物测定与气态污染物采样方法 GB/T 16157-1996,固定污染源废气低浓度颗粒物的测定重量HJ 836-2017

自动烟尘(气)测试仪

手工监测

颗粒物

DA065

微粉仓顶3#除尘

1次/年

钢铁工业大气污染物排放标准DB37/990-2019

10mg/Nm3

固定污染源排气中颗粒物测定与气态污染物采样方法 GB/T 16157-1996,固定污染源废气低浓度颗粒物的测定重量HJ 836-2017

自动烟尘(气)测试仪

手工监测

颗粒物

DA066

微粉仓顶4#除尘

1次/年

钢铁工业大气污染物排放标准DB37/990-2019

10mg/Nm3

固定污染源排气中颗粒物测定与气态污染物采样方法 GB/T 16157-1996,固定污染源废气低浓度颗粒物的测定重量HJ 836-2017

自动烟尘(气)测试仪

手工监测

颗粒物

DA067

微粉仓底除尘

1次/年

钢铁工业大气污染物排放标准DB37/990-2019

10mg/Nm3

固定污染源排气中颗粒物测定与气态污染物采样方法 GB/T 16157-1996,固定污染源废气低浓度颗粒物的测定重量HJ 836-2017

自动烟尘(气)测试仪

手工监测

颗粒物

DA055

1#钢渣湿电除尘

1次/年

钢铁工业大气污染物排放标准DB37/990-2019

20mg/Nm3

固定污染源排气中颗粒物测定与气态污染物采样方法 GB/T 16157-1996,固定污染源废气低浓度颗粒物的测定重量HJ 836-2017

自动烟尘(气)测试仪

手工监测

颗粒物

DA056

2#钢渣湿电除尘

1次/年

钢铁工业大气污染物排放标准DB37/990-2019

20mg/Nm3

固定污染源排气中颗粒物测定与气态污染物采样方法 GB/T 16157-1996,固定污染源废气低浓度颗粒物的测定重量HJ 836-2017

自动烟尘(气)测试仪

手工监测

颗粒物

DA057

钢渣二次处理除尘

1次/年

钢铁工业大气污染物排放标准DB37/990-2019

10mg/Nm3

固定污染源排气中颗粒物测定与气态污染物采样方法 GB/T 16157-1996,固定污染源废气低浓度颗粒物的测定重量HJ 836-2017

自动烟尘(气)测试仪

手工监测

污染物排放方式及排放去向

净化处理后,通过排气筒高空排放

采样和样品保存方法

废气手工采样方法的选择参照相关污染物排放标准及 GB/T 16157、HJ/T 397 等执行。废气自动监测参照 HJ/T 75、HJ/T 76执行。

监测质量控制措施

1、监测人员严格执行环境监测技术规范。
2、监测所用仪器、量器经计量部门检定合格或分析人员进行校准。
3、废气自动监测数据严格按照《固定污染源烟气排放连续监测系统技术要求及检测方法》(HJ/T76-2007)执行。
4、废气样品的采集和分析严格按《固定污染源排气中颗粒物测定与气态污染物采样方法》(GB/T16157-1996)、《固定源废气监测技术规范》(HJ/T397-2007)和《固定污染源监测质量保证与质量控制技术规范(试行)》(HJ/T 373-2007)要求执行。

监测结果公开时限

依据《国家重点监控企业自行监测及信息公开办法》及《排污单位自行监测技术指南 钢铁工业及炼焦化学工业》的频次进行监测,监测完成后一周内向社会公开信息。

备注

 

 

废水自行监测内容表

监测项目

排放口

监测点位

监测频次

执行排放标准

标准限值

监测方法

分析仪器

备注

pH 值

DW001

烧结球团脱硫车间废水排放口

1 次/月

钢铁工业水污染物排放标准(GB13456-2012)

/

玻璃电极法

PH 计

手工监测

悬浮物

DW001

烧结球团脱硫车间废水排放口

1 次/月

钢铁工业水污染物排放标准(GB13456-2012)

/

重量法

悬浮物测定仪

手工监测

化学需氧量

DW001

烧结球团脱硫车间废水排放口

1 次/月

钢铁工业水污染物排放标准(GB13456-2012)

/

重铬酸盐法

消解仪

手工监测

石油类

DW001

烧结球团脱硫车间废水排放口

1 次/月

钢铁工业水污染物排放标准(GB13456-2012)

/

红外分光光度法

分光光度计

手工监测

总砷

DW001

烧结球团脱硫车间废水排放口

1 次/月

钢铁工业水污染物排放标准(GB13456-2012)

0.5 mg/L

原子荧光法

原子荧光光度计

手工监测

总铅

DW001

烧结球团脱硫车间废水排放口

1 次/月

钢铁工业水污染物排放标准(GB13456-2012)

1.0 mg/L

原子吸收分光光度法

原子吸收分光光度计

手工监测

总铊

DW001

烧结球团脱硫车间废水排放口

1 次/半年

《钢铁工业水污染物排放标准(GB 13456-2012)修改单

0.05mg/L

电感耦合等离子体质谱法

电感耦合等离子体质谱法

手工监测

流量

DW001

烧结球团脱硫车间废水排放口

1 次/月

钢铁工业水污染物排放标准(GB13456-2012)

/

流速仪法

流量计

手工监测

总砷

DW003

轧钢一车间废水排放口

1 次/月

钢铁工业水污染物排放标准(GB13456-2012)

0.5 mg/L

原子荧光法

原子荧光光度计

手工监测

六价铬

DW003

轧钢一车间废水排放口

1 次/月

钢铁工业水污染物排放标准(GB13456-2012)

0.5 mg/L

二苯碳酰二肼分光光度法

分光光度计

手工监测

总镉

DW003

轧钢一车间废水排放口

1 次/月

钢铁工业水污染物排放标准(GB13456-2012)

0.1 mg/L

原子吸收分光

原子荧光光度计

手工监测

总镍

DW003

轧钢一车间废水排放口

1 次/月

钢铁工业水污染物排放标准(GB13456-2012)

1.0 mg/L

火焰原子吸收分光光度法

分光光度计

手工监测

总铬

DW003

轧钢一车间废水排放口

1 次/月

钢铁工业水污染物排放标准(GB13456-2012)

1.5 mg/L

锰酸钾氧化-二苯碳酰二肼分光光度法

分光光度计

手工监测

总汞

DW003

轧钢一车间废水排放口

1 次/月

钢铁工业水污染物排放标准(GB13456-2012)

0.05 mg/L

高锰酸钾-过硫酸钾消解法双硫腙分光光度法

分光光度计

手工监测

总砷

DW004

轧钢二车间废水排放口

1 次/月

钢铁工业水污染物排放标准(GB13456-2012)

0.5 mg/L

原子荧光法

原子荧光光度计

手工监测

六价铬

DW004

轧钢二车间废水排放口

1 次/月

钢铁工业水污染物排放标准(GB13456-2012)

0.5 mg/L

二苯碳酰二肼分光光度法

分光光度计

手工监测

总镉

DW004

轧钢二车间废水排放口

1 次/月

钢铁工业水污染物排放标准(GB13456-2012)

0.1 mg/L

原子吸收分光

原子荧光光度计

手工监测

总镍

DW004

轧钢二车间废水排放口

1 次/月

钢铁工业水污染物排放标准(GB13456-2012)

1.0 mg/L

火焰原子吸收分光光度法

分光光度计

手工监测

总铬

DW004

轧钢二车间废水排放口

1 次/月

钢铁工业水污染物排放标准(GB13456-2012)

1.5 mg/L

锰酸钾氧化-二苯碳酰二肼分光光度法

分光光度计

手工监测

总汞

DW004

轧钢二车间废水排放口

1 次/月

钢铁工业水污染物排放标准(GB13456-2012)

0.05 mg/L

高锰酸钾-过硫酸钾消解法双硫腙分光光度法

分光光度计

手工监测

PH

YS001

1#雨水排放口

有流量的情况下每日一次

流域水污染物综合排放标准第2部分:沂沭河流域(DB37/3416.2—2018)

6~9

玻璃电极法

PH计

手工监测

悬浮物

YS001

1#雨水排放口

有流量的情况下每日一次

流域水污染物综合排放标准第2部分:沂沭河流域(DB37/3416.2—2018)

20 mg/L

重量法

电子天平

手工监测

化学需氧量

YS001

1#雨水排放口

有流量的情况下每日一次

流域水污染物综合排放标准第2部分:沂沭河流域(DB37/3416.2—2018)

40 mg/L

重铬酸盐法

消解仪

手工监测

石油类

YS001

1#雨水排放口

有流量的情况下每日一次

流域水污染物综合排放标准第2部分:沂沭河流域(DB37/3416.2—2018)

3 mg/L

红外分光光度法

分光光度计

手工监测

氨氮(NH3-N)

YS001

1#雨水排放口

有流量的情况下每日一次

流域水污染物综合排放标准第2部分:沂沭河流域(DB37/3416.2—2018)

5 mg/L

纳氏试剂分光光度法

分光光度计

手工监测

PH

YS002

2#雨水排放口

有流量的情况下每日一次

流域水污染物综合排放标准第2部分:沂沭河流域(DB37/3416.2—2018)

6~9

玻璃电极法

PH计

手工监测

悬浮物

YS002

2#雨水排放口

有流量的情况下每日一次

流域水污染物综合排放标准第2部分:沂沭河流域(DB37/3416.2—2018)

20 mg/L

重量法

电子天平

手工监测

化学需氧量

YS002

2#雨水排放口

有流量的情况下每日一次

流域水污染物综合排放标准第2部分:沂沭河流域(DB37/3416.2—2018)

40 mg/L

重铬酸盐法

消解仪

手工监测

石油类

YS002

2#雨水排放口

有流量的情况下每日一次

流域水污染物综合排放标准第2部分:沂沭河流域(DB37/3416.2—2018)

3 mg/L

红外分光光度法

分光光度计

手工监测

氨氮(NH3-N)

YS002

2#雨水排放口

有流量的情况下每日一次

流域水污染物综合排放标准第2部分:沂沭河流域(DB37/3416.2—2018)

5 mg/L

纳氏试剂分光光度法

分光光度计

手工监测

PH

YS003

3#雨水排放口

有流量的情况下每日一次

流域水污染物综合排放标准第2部分:沂沭河流域(DB37/3416.2—2018)

6~9

玻璃电极法

PH计

手工监测

悬浮物

YS003

3#雨水排放口

有流量的情况下每日一次

流域水污染物综合排放标准第2部分:沂沭河流域(DB37/3416.2—2018)

20 mg/L

重量法

电子天平

手工监测

化学需氧量

YS003

3#雨水排放口

有流量的情况下每日一次

流域水污染物综合排放标准第2部分:沂沭河流域(DB37/3416.2—2018)

40 mg/L

重铬酸盐法

消解仪

手工监测

石油类

YS003

3#雨水排放口

有流量的情况下每日一次

流域水污染物综合排放标准第2部分:沂沭河流域(DB37/3416.2—2018)

3 mg/L

红外分光光度法

分光光度计

手工监测

氨氮(NH3-N)

YS003

3#雨水排放口

有流量的情况下每日一次

流域水污染物综合排放标准第2部分:沂沭河流域(DB37/3416.2—2018)

5 mg/L

纳氏试剂分光光度法

分光光度计

手工监测

PH

YS004

4#雨水排放口

有流量的情况下每日一次

流域水污染物综合排放标准第2部分:沂沭河流域(DB37/3416.2—2018)

69

玻璃电极法

PH计

手工监测

悬浮物

YS004

4#雨水排放口

有流量的情况下每日一次

流域水污染物综合排放标准第2部分:沂沭河流域(DB37/3416.2—2018)

20 mg/L

重量法

电子天平

手工监测

化学需氧量

YS004

4#雨水排放口

有流量的情况下每日一次

流域水污染物综合排放标准第2部分:沂沭河流域(DB37/3416.2—2018)

40 mg/L

重铬酸盐法

消解仪

手工监测

石油类

YS004

4#雨水排放口

有流量的情况下每日一次

流域水污染物综合排放标准第2部分:沂沭河流域(DB37/3416.2—2018)

3 mg/L

红外分光光度法

分光光度计

手工监测

氨氮(NH3-N)

YS004

4#雨水排放口

有流量的情况下每日一次

流域水污染物综合排放标准第2部分:沂沭河流域(DB37/3416.2—2018)

5 mg/L

纳氏试剂分光光度法

分光光度计

手工监测

挥发酚

/

1#高炉冲渣回用水

1 周/次

钢铁工业水污染物排放标准(GB13456-2012)

/

4-氨基安替比林分光光度法

分光光度计

手工监测

PH

/

1#高炉冲渣补水口

1 周/次

钢铁工业水污染物排放标准(GB13456-2012)

/

玻璃电极法

PH 计

手工监测

悬浮物

/

1#高炉冲渣补水口

1 周/次

钢铁工业水污染物排放标准(GB13456-2012)

/

重量法

电子天平

手工监测

化学需氧量

/

1#高炉冲渣补水口

1 周/次

钢铁工业水污染物排放标准(GB13456-2012)

/

重铬酸盐法

消解仪

手工监测

氨氮

/

1#高炉冲渣补水口

1 周/次

钢铁工业水污染物排放标准(GB13456-2012)

/

水杨酸比色法

氨氮分析仪

手工监测

挥发酚

/

1#高炉冲渣补水口

1 周/次

钢铁工业水污染物排放标准(GB13456-2012)

/

4-氨基安替比

分光光度计

手工监测

氰化物

/

1#高炉冲渣补水口

1 周/次

钢铁工业水污染物排放标准(GB13456-2012)

/

异烟酸吡唑啉酮分光光度法

分光光度计

手工监测

挥发酚

/

2#高炉冲渣回用水

1 周/次

钢铁工业水污染物排放标准(GB13456-2012)

/

4-氨基安替比林分光光度法

分光光度计

手工监测

PH

/

2#高炉冲渣回用水

1 周/次

钢铁工业水污染物排放标准(GB13456-2012)

/

玻璃电极法

PH 计

手工监测

悬浮物

/

2#高炉冲渣回用水

1 周/次

钢铁工业水污染物排放标准(GB13456-2012)

/

重量法

电子天平

手工监测

化学需氧量

/

2#高炉冲渣回用水

1 周/次

钢铁工业水污染物排放标准(GB13456-2012)

/

重铬酸盐法

消解仪

手工监测

氨氮

/

2#高炉冲渣回用水

1 周/次

钢铁工业水污染物排放标准(GB13456-2012)

/

水杨酸比色法

氨氮分析仪

手工监测

挥发酚

/

2#高炉冲渣回用水

1 周/次

钢铁工业水污染物排放标准(GB13456-2012)

/

4-氨基安替比

分光光度计

手工监测

氰化物

/

2#高炉冲渣回用水

1 周/次

钢铁工业水污染物排放标准(GB13456-2012)

/

异烟酸吡唑啉酮分光光度法

分光光度计

手工监测

污染物排放方式及排放去向

综合污水处理厂处理后不外排

采样和样品保存方法

按照《HJ 493-2009 水质 样品的保存和管理技术规定》、《HJ 494-2009 水质 采样技术导则》、《HJ 91.1-2019 污水监测技术规范》及检测参数具体国家或地方检测标准进行样品采样和保存。

监测质量控制措施

1、监测人员严格执行环境监测技术规范。
2、监测所用仪器、量器经计量部门检定合格或分析人员进行校准。
3、废水样品的采集、保存、分析均按照相关技术规范要求进行。监测分析方法采用国家有关部门颁布的标准(或推荐)分析方法。

监测结果公开时限

依据《国家重点监控企业自行监测及信息公开办法》及《排污单位自行监测技术指南 钢铁工业及炼焦化学工业》的频次进行监测,监测完成后一周内向社会公开信息。

备注


 

无组织自行监测内容表

监测项目

监测点位

监测频次

执行排放标准

标准限值

监测方法

分析仪器

备注

颗粒物

公司厂界

1次/季度

排污许可证

1 mg/m3

重量法

中流量智能TSP 采样器

手工监测

颗粒物

烧结车间

1次/年

排污许可证

8 mg/m3

重量法

中流量智能TSP 采样器

手工监测

颗粒物

球团车间

1次/年

排污许可证

8 mg/m3

重量法

中流量智能TSP 采样器

手工监测

颗粒物

炼铁车间

1次/年

排污许可证

8 mg/m3

重量法

中流量智能TSP 采样器

手工监测

颗粒物

炼钢车间

1次/年

排污许可证

8 mg/m3

重量法

中流量智能TSP 采样器

手工监测

污染物排放方式及排放去向

各产尘点配备有效的废气捕集装置

采样和样品保存方法

严格按《环境空气总悬浮物的测定重量法》(GB/T15432-1995)要求进行。

监测质量控制措施

1、监测人员严格执行环境监测技术规范。
2、监测所用仪器、量器经计量部门检定合格或分析人员进行校准。

监测结果公开时限

依据《国家重点监控企业自行监测及信息公开办法》的要求及《排污单位自行监测技术指南 钢铁工业及炼焦化学工业》的频次进行监测,监测完成后一周内向社会公开信息。

备注

 

 

厂界噪声自行监测内容表

 

监测项目

监测点位

监测频次

执行排放标准

标准限值

监测方法

分析仪器

备注

工业企业厂界环境噪声(夜间)

东厂界

1 季度/次

排污许可证

55 dB

噪声分析

多功能声级计

手工监测

工业企业厂界环境噪声(昼间)

东厂界

1 季度/次

排污许可证

65 dB

噪声分析

多功能声级计

手工监测

工业企业厂界环境噪声(夜间)

西厂界

1 季度/次

排污许可证

55 dB

噪声分析

多功能声级计

手工监测

工业企业厂界环境噪声(昼间)

西厂界

1 季度/次

排污许可证

65 dB

噪声分析

多功能声级计

手工监测

工业企业厂界环境噪声(夜间)

南厂界

1 季度/次

排污许可证

55 dB

噪声分析

多功能声级计

手工监测

工业企业厂界环境噪声(昼间)

南厂界

1 季度/次

排污许可证

65 dB

噪声分析

多功能声级计

手工监测

工业企业厂界环境噪声(夜间)

北厂界

1 季度/次

排污许可证

55 dB

噪声分析

多功能声级计

手工监测

工业企业厂界环境噪声(昼间)

北厂界

1 季度/次

排污许可证

65 dB

噪声分析

多功能声级计

手工监测

污染物排放方式及排放去向

经噪音治理设施处理

采样和样品保存方法

严格按照《工业企业厂界环境噪声排放标准》(GB12348-2008)、《声环境质量标准》(GB3096-2008)要求进行。

监测质量控制措施

1.机构:承担监测任务的检测机构通过省级计量认证或国家实验室资质认定。
2.人员:监测人员(监测测试人员、现场采样人员)持证上岗(监测系统人员),实习员必须由持证。
3.设备:监测过程中使用的仪器设备符合国家有关标准和技术要求。
4.监测时的工况调查:现场监测期间,项目生产、环保设施运行正常,生产负荷满足现场监测要求。

监测结果公开时限

依据《国家重点监控企业自行监测及信息公开办法》的要求及《排污单位自行监测技术指南 钢铁工业及炼焦化学工业》的频次进行监测,监测完成后一周内向社会公开信息。

备注

 

 

地下水自行监测内容表

 

监测项目

监测点位

监测频次

执行排放标准

标准限值

监测方法

分析仪器

备注

PH

2#地下水环境监测井-北厂界,1#地下水环境监测井-轧钢南,3#地下水环境监测井-高炉东南,4#地下水环境监测井-水渣场南

1次/半年

(分枯水期与丰水期)

地下水质量标准(GB_T14848-2017

6.5PH8.5

电极法

便携式多参数分析仪

手工监测

电导率

2#地下水环境监测井-北厂界,1#地下水环境监测井-轧钢南,3#地下水环境监测井-高炉东南,4#地下水环境监测井-水渣场南

1次/半年

(分枯水期与丰水期)

地下水质量标准(GB_T14848-2017

/

电极法

电导率仪

手工监测

浑浊度

2#地下水环境监测井-北厂界,1#地下水环境监测井-轧钢南,3#地下水环境监测井-高炉东南,4#地下水环境监测井-水渣场南

1次/半年

(分枯水期与丰水期)

地下水质量标准(GB_T14848-2017

3

浊度计法

便携式多参数分析仪

手工监测

溶解氧

2#地下水环境监测井-北厂界,1#地下水环境监测井-轧钢南,3#地下水环境监测井-高炉东南,4#地下水环境监测井-水渣场南

1次/半年

(分枯水期与丰水期)

地下水质量标准(GB_T14848-2017

/

电化学探头法

溶解氧测量仪

手工监测

色度

2#地下水环境监测井-北厂界,1#地下水环境监测井-轧钢南,3#地下水环境监测井-高炉东南,4#地下水环境监测井-水渣场南

1次/半年

(分枯水期与丰水期)

地下水质量标准(GB_T14848-2017

15

铂钴比色法

便携式多参数分析仪

手工监测

氧化还原电位

2#地下水环境监测井-北厂界,1#地下水环境监测井-轧钢南,3#地下水环境监测井-高炉东南,4#地下水环境监测井-水渣场南

1次/半年

(分枯水期与丰水期)

地下水质量标准(GB_T14848-2017

/

电极反应

复合电极

手工监测

目视可见物

2#地下水环境监测井-北厂界,1#地下水环境监测井-轧钢南,3#地下水环境监测井-高炉东南,4#地下水环境监测井-水渣场南

1次/半年

(分枯水期与丰水期)

地下水质量标准(GB_T14848-2017

直接观察法

/

手工监测

嗅和味

2#地下水环境监测井-北厂界,1#地下水环境监测井-轧钢南,3#地下水环境监测井-高炉东南,4#地下水环境监测井-水渣场南

1次/半年

(分枯水期与丰水期)

地下水质量标准(GB_T14848-2017

嗅气和尝味法

/

手工监测

总硬度

2#地下水环境监测井-北厂界,1#地下水环境监测井-轧钢南,3#地下水环境监测井-高炉东南,4#地下水环境监测井-水渣场南

1次/半年

(分枯水期与丰水期)

地下水质量标准(GB_T14848-2017

450

EDTA滴定法

酸式滴定管

手工监测

碳酸盐

2#地下水环境监测井-北厂界,1#地下水环境监测井-轧钢南,3#地下水环境监测井-高炉东南,4#地下水环境监测井-水渣场南

1次/半年

(分枯水期与丰水期)

地下水质量标准(GB_T14848-2017

/

滴定法

滴定管

手工监测

重碳酸盐

2#地下水环境监测井-北厂界,1#地下水环境监测井-轧钢南,3#地下水环境监测井-高炉东南,4#地下水环境监测井-水渣场南

1次/半年

(分枯水期与丰水期)

地下水质量标准(GB_T14848-2017

/

滴定法

滴定管

手工监测

硫酸盐

2#地下水环境监测井-北厂界,1#地下水环境监测井-轧钢南,3#地下水环境监测井-高炉东南,4#地下水环境监测井-水渣场南

1次/半年

(分枯水期与丰水期)

地下水质量标准(GB_T14848-2017

250

离子色谱法

离子色谱仪

手工监测

硝酸盐

2#地下水环境监测井-北厂界,1#地下水环境监测井-轧钢南,3#地下水环境监测井-高炉东南,4#地下水环境监测井-水渣场南

1次/半年

(分枯水期与丰水期)

地下水质量标准(GB_T14848-2017

20.0

离子色谱法

离子色谱仪

手工监测

亚硝酸盐

2#地下水环境监测井-北厂界,1#地下水环境监测井-轧钢南,3#地下水环境监测井-高炉东南,4#地下水环境监测井-水渣场南

1次/半年

(分枯水期与丰水期)

地下水质量标准(GB_T14848-2017

1.00

离子色

离子色谱仪

手工监测

氟化物

2#地下水环境监测井-北厂界,1#地下水环境监测井-轧钢南,3#地下水环境监测井-高炉东南,4#地下水环境监测井-水渣场南

1次/半年

(分枯水期与丰水期)

地下水质量标准(GB_T14848-2017

1.0

离子选择电极法

离子色谱仪

手工监测

氯化物

2#地下水环境监测井-北厂界,1#地下水环境监测井-轧钢南,3#地下水环境监测井-高炉东南,4#地下水环境监测井-水渣场南

1次/半年

(分枯水期与丰水期)

地下水质量标准(GB_T14848-2017

250

离子色谱法

离子色谱仪

手工监测

氰化物

2#地下水环境监测井-北厂界,1#地下水环境监测井-轧钢南,3#地下水环境监测井-高炉东南,4#地下水环境监测井-水渣场南

1次/半年

(分枯水期与丰水期)

地下水质量标准(GB_T14848-2017

0.05

异烟酸-吡唑酮分光光度法

 

分光光度计

手工监测

挥发酚

2#地下水环境监测井-北厂界,1#地下水环境监测井-轧钢南,3#地下水环境监测井-高炉东南,4#地下水环境监测井-水渣场南

1次/半年

(分枯水期与丰水期)

地下水质量标准(GB_T14848-2017

0.002

光光度法

分光光度计

手工监测

氨氮

2#地下水环境监测井-北厂界,1#地下水环境监测井-轧钢南,3#地下水环境监测井-高炉东南,4#地下水环境监测井-水渣场南

1次/半年

(分枯水期与丰水期)

地下水质量标准(GB_T14848-2017

0.50

水杨酸分光光度法

分光光度计

手工监测

耗氧量

2#地下水环境监测井-北厂界,1#地下水环境监测井-轧钢南,3#地下水环境监测井-高炉东南,4#地下水环境监测井-水渣场南

1次/半年

(分枯水期与丰水期)

地下水质量标准(GB_T14848-2017

3.0

电化学探头法

便携式多参数分析仪

手工监测

溶解性总固体

2#地下水环境监测井-北厂界,1#地下水环境监测井-轧钢南,3#地下水环境监测井-高炉东南,4#地下水环境监测井-水渣场南

1次/半年

(分枯水期与丰水期)

地下水质量标准(GB_T14848-2017

1000

称量法

电子天平

手工监测

2#地下水环境监测井-北厂界,1#地下水环境监测井-轧钢南,3#地下水环境监测井-高炉东南,4#地下水环境监测井-水渣场南

1次/半年

(分枯水期与丰水期)

地下水质量标准(GB_T14848-2017

/

离子色谱法

离子色谱仪

手工监测

2#地下水环境监测井-北厂界,1#地下水环境监测井-轧钢南,3#地下水环境监测井-高炉东南,4#地下水环境监测井-水渣场南

1次/半年

(分枯水期与丰水期)

地下水质量标准(GB_T14848-2017

200

火焰原子吸收分光光度法

原子吸收分光光度计

手工监测

2#地下水环境监测井-北厂界,1#地下水环境监测井-轧钢南,3#地下水环境监测井-高炉东南,4#地下水环境监测井-水渣场南

1次/半年

(分枯水期与丰水期)

地下水质量标准(GB_T14848-2017

/

电感耦合等离子体发射光谱法

电感耦合等离子体发射光谱仪

手工监测

2#地下水环境监测井-北厂界,1#地下水环境监测井-轧钢南,3#地下水环境监测井-高炉东南,4#地下水环境监测井-水渣场南

1次/半年

(分枯水期与丰水期)

地下水质量标准(GB_T14848-2017

/

电感耦合等离子体发射光谱法

电感耦合等离子体发射光谱仪

手工监测

2#地下水环境监测井-北厂界,1#地下水环境监测井-轧钢南,3#地下水环境监测井-高炉东南,4#地下水环境监测井-水渣场南

1次/半年

(分枯水期与丰水期)

地下水质量标准(GB_T14848-2017

0.3

电感耦合等离子体质谱法

电感耦合等离子体质谱仪

手工监测

2#地下水环境监测井-北厂界,1#地下水环境监测井-轧钢南,3#地下水环境监测井-高炉东南,4#地下水环境监测井-水渣场南

1次/半年

(分枯水期与丰水期)

地下水质量标准(GB_T14848-2017

0.3

电感耦合等离子体质谱法

电感耦合等离子体质谱仪

手工监测

2#地下水环境监测井-北厂界,1#地下水环境监测井-轧钢南,3#地下水环境监测井-高炉东南,4#地下水环境监测井-水渣场南

1次/半年

(分枯水期与丰水期)

地下水质量标准(GB_T14848-2017

1.00

电感耦合等离子体质谱法

电感耦合等离子体质谱仪

手工监测

2#地下水环境监测井-北厂界,1#地下水环境监测井-轧钢南,3#地下水环境监测井-高炉东南,4#地下水环境监测井-水渣场南

1次/半年

(分枯水期与丰水期)

地下水质量标准(GB_T14848-2017

1.00

电感耦合等离子体质谱法

电感耦合等离子体质谱仪

手工监测

2#地下水环境监测井-北厂界,1#地下水环境监测井-轧钢南,3#地下水环境监测井-高炉东南,4#地下水环境监测井-水渣场南

1次/半年

(分枯水期与丰水期)

地下水质量标准(GB_T14848-2017

0.005

分光光度法

石墨炉原子吸收光谱仪

手工监测

2#地下水环境监测井-北厂界,1#地下水环境监测井-轧钢南,3#地下水环境监测井-高炉东南,4#地下水环境监测井-水渣场南

1次/半年

(分枯水期与丰水期)

地下水质量标准(GB_T14848-2017

0.001

原子荧光法

原子荧光光度计

手工监测

2#地下水环境监测井-北厂界,1#地下水环境监测井-轧钢南,3#地下水环境监测井-高炉东南,4#地下水环境监测井-水渣场南

1次/半年

(分枯水期与丰水期)

地下水质量标准(GB_T14848-2017

0.01

原子荧光法

原子荧光光度计

手工监测

六价铬

2#地下水环境监测井-北厂界,1#地下水环境监测井-轧钢南,3#地下水环境监测井-高炉东南,4#地下水环境监测井-水渣场南

1次/半年

(分枯水期与丰水期)

地下水质量标准(GB_T14848-2017

0.05

火焰原子吸收分光光度法

原子吸收光谱仪

手工监测

2#地下水环境监测井-北厂界,1#地下水环境监测井-轧钢南,3#地下水环境监测井-高炉东南,4#地下水环境监测井-水渣场南

1次/半年

(分枯水期与丰水期)

地下水质量标准(GB_T14848-2017

0.01

火焰原子吸收分光光度法

火焰原子吸收分光光度计

手工监测

2#地下水环境监测井-北厂界,1#地下水环境监测井-轧钢南,3#地下水环境监测井-高炉东南,4#地下水环境监测井-水渣场南

1次/半年

(分枯水期与丰水期)

地下水质量标准(GB_T14848-2017

0.02

火焰原子吸收分光光度法

原子吸收分光光度计

手工监测

2#地下水环境监测井-北厂界,1#地下水环境监测井-轧钢南,3#地下水环境监测井-高炉东南,4#地下水环境监测井-水渣场南

1次/半年

(分枯水期与丰水期)

地下水质量标准(GB_T14848-2017

0.05

电感耦合等离子体质谱法

电感耦合等离子体质谱仪

手工监测

2#地下水环境监测井-北厂界,1#地下水环境监测井-轧钢南,3#地下水环境监测井-高炉东南,4#地下水环境监测井-水渣场南

1次/半年

(分枯水期与丰水期)

地下水质量标准(GB_T14848-2017

10.0

吹扫捕集/气相色谱-质谱法

气相-质谱联用仪

手工监测

甲苯

2#地下水环境监测井-北厂界,1#地下水环境监测井-轧钢南,3#地下水环境监测井-高炉东南,4#地下水环境监测井-水渣场南

1次/半年

(分枯水期与丰水期)

地下水质量标准(GB_T14848-2017

700

吹扫捕集/气相色谱-质谱法

气相-质谱联用仪

手工监测

石油类

2#地下水环境监测井-北厂界,1#地下水环境监测井-轧钢南,3#地下水环境监测井-高炉东南,4#地下水环境监测井-水渣场南

1次/半年

(分枯水期与丰水期)

地下水质量标准(GB_T14848-2017

/

紫外分光光度法

紫外分光光度计

手工监测

污染物排放方式及排放去向

采样和样品保存方法

严格按照地下水质量标准(GB_T14848-2017)、钢铁行业地下水监测技术规范(YB_T4961-2021)要求进行。

监测质量控制措施

1.机构:承担监测任务的检测机构通过省级计量认证或国家实验室资质认定。
2.人员:监测人员(监测测试人员、现场采样人员)持证上岗(监测系统人员),实习员必须由持证。
3.设备:监测过程中使用的仪器设备符合国家有关标准和技术要求。
4.监测时的工况调查:现场监测期间,项目生产、环保设施运行正常,生产负荷满足现场监测要求。

监测结果公开时限

依据《国家重点监控企业自行监测及信息公开办法》的要求及《排污单位自行监测技术指南 钢铁工业及炼焦化学工业》的频次进行监测,监测完成后一周内向社会公开信息。

备注

 

土壤自行监测内容表

监测项目

监测点位

监测频次

执行排放标准

标准限值

监测方法

分析仪器

备注

原料场、烧结、球团、高炉、炼钢、污水处理站区域

1次/年

土壤环境质量建设用地土壤污染风险管控标准(试行)(GB36600—2018)

60

原子荧光法

原子荧光光度计

手工监测

原料场、烧结、球团、高炉、炼钢、污水处理站区域

1次/年

土壤环境质量建设用地土壤污染风险管控标准(试行)(GB36600—2018)

65

分光光度法

石墨炉原子吸收光谱仪

手工监测

六价镉

原料场、烧结、球团、高炉、炼钢、污水处理站区域

1次/年

土壤环境质量建设用地土壤污染风险管控标准(试行)(GB36600—2018)

5.7

原子吸收分光光度法

原子吸收分光光度计

手工监测

原料场、烧结、球团、高炉、炼钢、污水处理站区域

1次/年

土壤环境质量建设用地土壤污染风险管控标准(试行)(GB36600—2018)

18000

火焰原子吸收分光光度法

原子吸收分光光度计

手工监测

原料场、烧结、球团、高炉、炼钢、污水处理站区域

1次/年

土壤环境质量建设用地土壤污染风险管控标准(试行)(GB36600—2018)

800

原子吸收分光光度法

原子吸收分光光度计

手工监测

原料场、烧结、球团、高炉、炼钢、污水处理站区域

1次/年

土壤环境质量建设用地土壤污染风险管控标准(试行)(GB36600—2018)

38

原子荧光法

原子荧光光度计

手工监测

原料场、烧结、球团、高炉、炼钢、污水处理站区域

1次/年

土壤环境质量建设用地土壤污染风险管控标准(试行)(GB36600—2018)

900

原子吸收分光光度法

原子吸收分光光度计

手工监测

四氯化碳

原料场、烧结、球团、高炉、炼钢、污水处理站区域

1次/年

土壤环境质量建设用地土壤污染风险管控标准(试行)(GB36600—2018)

2.8

质谱法

气象色谱仪

手工监测

氯仿

原料场、烧结、球团、高炉、炼钢、污水处理站区域

1次/年

土壤环境质量建设用地土壤污染风险管控标准(试行)(GB36600—2018)

0.9

质谱法

气象色谱仪

手工监测

氯甲烷

原料场、烧结、球团、高炉、炼钢、污水处理站区域

1次/年

土壤环境质量建设用地土壤污染风险管控标准(试行)(GB36600—2018)

37

质谱法

气象色谱仪

手工监测

1,1-二氯乙烷

原料场、烧结、球团、高炉、炼钢、污水处理站区域

1次/年

土壤环境质量建设用地土壤污染风险管控标准(试行)(GB36600—2018)

9

质谱法

气象色谱仪

手工监测

1,2-二氯乙烷

原料场、烧结、球团、高炉、炼钢、污水处理站区域

1次/年

土壤环境质量建设用地土壤污染风险管控标准(试行)(GB36600—2018)

5

质谱法

气象色谱仪

手工监测

1,1-二氯乙烯

原料场、烧结、球团、高炉、炼钢、污水处理站区域

1次/年

土壤环境质量建设用地土壤污染风险管控标准(试行)(GB36600—2018)

66

质谱法

气象色谱仪

手工监测

-1,2-二氯乙烯

原料场、烧结、球团、高炉、炼钢、污水处理站区域

1次/年

土壤环境质量建设用地土壤污染风险管控标准(试行)(GB36600—2018)

596

质谱法

气象色谱仪

手工监测

-1,2-二氯乙烯

原料场、烧结、球团、高炉、炼钢、污水处理站区域

1次/年

土壤环境质量建设用地土壤污染风险管控标准(试行)(GB36600—2018)

54

质谱法

气象色谱仪

手工监测

二氯甲烷

原料场、烧结、球团、高炉、炼钢、污水处理站区域

1次/年

土壤环境质量建设用地土壤污染风险管控标准(试行)(GB36600—2018)

616

质谱法

气象色谱仪

手工监测

1,2-二氯丙烷

原料场、烧结、球团、高炉、炼钢、污水处理站区域

1次/年

土壤环境质量建设用地土壤污染风险管控标准(试行)(GB36600—2018)

5

质谱法

气象色谱仪

手工监测

1,1,1,2-四氯乙烷

原料场、烧结、球团、高炉、炼钢、污水处理站区域

1次/年

土壤环境质量建设用地土壤污染风险管控标准(试行)(GB36600—2018)

10

质谱法

气象色谱仪

手工监测

1,1,2,2-四氯乙烷

原料场、烧结、球团、高炉、炼钢、污水处理站区域

1次/年

土壤环境质量建设用地土壤污染风险管控标准(试行)(GB36600—2018)

6.8

质谱法

气象色谱仪

手工监测

四氯乙烯

原料场、烧结、球团、高炉、炼钢、污水处理站区域

1次/年

土壤环境质量建设用地土壤污染风险管控标准(试行)(GB36600—2018)

53

质谱法

气象色谱仪

手工监测

1,1,1-三氯乙烷

原料场、烧结、球团、高炉、炼钢、污水处理站区域

1次/年

土壤环境质量建设用地土壤污染风险管控标准(试行)(GB36600—2018)

840

质谱法

气象色谱仪

手工监测

1,1,2-三氯乙烷

原料场、烧结、球团、高炉、炼钢、污水处理站区域

1次/年

土壤环境质量建设用地土壤污染风险管控标准(试行)(GB36600—2018)

2.8

质谱法

气象色谱仪

手工监测

三氯乙烯

原料场、烧结、球团、高炉、炼钢、污水处理站区域

1次/年

土壤环境质量建设用地土壤污染风险管控标准(试行)(GB36600—2018)

2.8

质谱法

气象色谱仪

手工监测

1,2,3-三氯丙烷

原料场、烧结、球团、高炉、炼钢、污水处理站区域

1次/年

土壤环境质量建设用地土壤污染风险管控标准(试行)(GB36600—2018)

0.5

质谱法

气象色谱仪

手工监测

氯乙烯

原料场、烧结、球团、高炉、炼钢、污水处理站区域

1次/年

土壤环境质量建设用地土壤污染风险管控标准(试行)(GB36600—2018)

0.43

质谱法

气象色谱仪

手工监测

原料场、烧结、球团、高炉、炼钢、污水处理站区域

1次/年

土壤环境质量建设用地土壤污染风险管控标准(试行)(GB36600—2018)

4

质谱法

气象色谱仪

手工监测

氯苯

原料场、烧结、球团、高炉、炼钢、污水处理站区域

1次/年

土壤环境质量建设用地土壤污染风险管控标准(试行)(GB36600—2018)

270

质谱法

气象色谱仪

手工监测

1,2-二氯苯

原料场、烧结、球团、高炉、炼钢、污水处理站区域

1次/年

土壤环境质量建设用地土壤污染风险管控标准(试行)(GB36600—2018)

560

质谱法

气象色谱仪

手工监测

1,4-二氯苯

原料场、烧结、球团、高炉、炼钢、污水处理站区域

1次/年

土壤环境质量建设用地土壤污染风险管控标准(试行)(GB36600—2018)

20

质谱法

气象色谱仪

手工监测

乙苯

原料场、烧结、球团、高炉、炼钢、污水处理站区域

1次/年

土壤环境质量建设用地土壤污染风险管控标准(试行)(GB36600—2018)

28

质谱法

气象色谱仪

手工监测

苯乙烯

原料场、烧结、球团、高炉、炼钢、污水处理站区域

1次/年

土壤环境质量建设用地土壤污染风险管控标准(试行)(GB36600—2018)

1290

质谱法

气象色谱仪

手工监测

甲苯

原料场、烧结、球团、高炉、炼钢、污水处理站区域

1次/年

土壤环境质量建设用地土壤污染风险管控标准(试行)(GB36600—2018)

1200

质谱法

气象色谱仪

手工监测

间二甲苯+对二甲苯

原料场、烧结、球团、高炉、炼钢、污水处理站区域

1次/年

土壤环境质量建设用地土壤污染风险管控标准(试行)(GB36600—2018)

570

质谱法

气象色谱仪

手工监测

邻二甲苯

原料场、烧结、球团、高炉、炼钢、污水处理站区域

1次/年

土壤环境质量建设用地土壤污染风险管控标准(试行)(GB36600—2018)

640

质谱法

气象色谱仪

手工监测

硝基苯

原料场、烧结、球团、高炉、炼钢、污水处理站区域

1次/年

土壤环境质量建设用地土壤污染风险管控标准(试行)(GB36600—2018)

76

质谱法

气象色谱仪

手工监测

苯胺

原料场、烧结、球团、高炉、炼钢、污水处理站区域

1次/年

土壤环境质量建设用地土壤污染风险管控标准(试行)(GB36600—2018)

260

质谱法

气象色谱仪

手工监测

2-氯酚

原料场、烧结、球团、高炉、炼钢、污水处理站区域

1次/年

土壤环境质量建设用地土壤污染风险管控标准(试行)(GB36600—2018)

2256

质谱法

气象色谱仪

手工监测

苯并[a]蒽

原料场、烧结、球团、高炉、炼钢、污水处理站区域

1次/年

土壤环境质量建设用地土壤污染风险管控标准(试行)(GB36600—2018)

15

质谱法

气象色谱仪

手工监测

苯并[a]芘

原料场、烧结、球团、高炉、炼钢、污水处理站区域

1次/年

土壤环境质量建设用地土壤污染风险管控标准(试行)(GB36600—2018)

1.5

质谱法

气象色谱仪

手工监测

苯并[b]荧蒽

原料场、烧结、球团、高炉、炼钢、污水处理站区域

1次/年

土壤环境质量建设用地土壤污染风险管控标准(试行)(GB36600—2018)

15

质谱法

气象色谱仪

手工监测

苯并[k]荧蒽

原料场、烧结、球团、高炉、炼钢、污水处理站区域

1次/年

土壤环境质量建设用地土壤污染风险管控标准(试行)(GB36600—2018)

151

质谱法

气象色谱仪

手工监测

原料场、烧结、球团、高炉、炼钢、污水处理站区域

1次/年

土壤环境质量建设用地土壤污染风险管控标准(试行)(GB36600—2018)

1293

质谱法

气象色谱仪

手工监测

二苯并[a, h]蒽

原料场、烧结、球团、高炉、炼钢、污水处理站区域

1次/年

土壤环境质量建设用地土壤污染风险管控标准(试行)(GB36600—2018)

1.5

质谱法

气象色谱仪

手工监测

茚并

[1,2,3-cd]芘

原料场、烧结、球团、高炉、炼钢、污水处理站区域

1次/年

土壤环境质量建设用地土壤污染风险管控标准(试行)(GB36600—2018)

15

质谱法

气象色谱仪

手工监测

原料场、烧结、球团、高炉、炼钢、污水处理站区域

1次/年

土壤环境质量建设用地土壤污染风险管控标准(试行)(GB36600—2018)

70

质谱法

气象色谱仪

手工监测

二噁英

原料场、烧结、球团、高炉、炼钢、污水处理站区域

1次/年

土壤环境质量建设用地土壤污染风险管控标准(试行)(GB36600—2018)

4×10-5

质谱法

气象色谱仪

手工监测

污染物排放方式及排放去向

采样和样品保存方法

严格按照土壤环境质量建设用地土壤污染风险管控标准(试行)(GB36600—2018)要求进行。

监测质量控制措施

1.机构:承担监测任务的检测机构通过省级计量认证或国家实验室资质认定。
2.人员:监测人员(监测测试人员、现场采样人员)持证上岗(监测系统人员),实习员必须由持证。
3.设备:监测过程中使用的仪器设备符合国家有关标准和技术要求。
4.监测时的工况调查:现场监测期间,项目生产、环保设施运行正常,生产负荷满足现场监测要求。

监测结果公开时限

依据《国家重点监控企业自行监测及信息公开办法》的要求及《排污单位自行监测技术指南 钢铁工业及炼焦化学工业》的频次进行监测,监测完成后一周内向社会公开信息。

备注

 

 

三、监测结果

 

 

22年有组织废气污染物监测结果表

序号

排放口编号

排放口名称

监测日期

出口

标干烟气量(Nm3/h)

氧含量(%)

二氧化硫(mg/m3)

颗粒物(mg/m3)

氮氧化物(mg/m3)

氟化物(mg/m3)

铅及其化合物(mg/m3)

(mg/m3)

烟气黑度


其他内容,可补充

监测结果

折标值

监测结果

折标值

监测结果

折标值

监测结果

折标值

监测结果

折标值

监测结果

监测结果

1

DA001

原料1#除尘

2022.9.1

545855

/

/

/

1.2

/

/

/

/

/

/

/

/

/

 

2

DA002

原料2#除尘

2022.9.1

273243

/

/

/

3.0

/

/

/

/

/

/

/

/

/

 

3

DA003

原料3#除尘

2022.9.1

192649

/

/

/

1.5

/

/

/

/

/

/

/

/

/

 

4

DA004

原料4#除尘

2022.9.1

480608

/

/

/

2.2

/

/

/

/

/

/

/

/

/

 

5

DA005

原料5#除尘

2022.9.1

200081

/

/

/

2.4

/

/

/

/

/

/

/

/

/

 

6

DA006

原料6#除尘

2022.9.1

411046

/

/

/

1.7

/

/

/

/

/

/

/

/

/

 

7

DA007

原料7#除尘

2022.9.1

51980

/

/

/

6.3

/

/

/

/

/

/

/

/

/

 

8

DA008

原料8#除尘

2022.9.1

410849

/

/

/

2.0

/

/

/

/

/

/

/

/

/

 

9

DA058

原料9#除尘

2022.9.1

29411

/

/

/

1.6

/

/

/

/

/

/

/

/

/

 

10

DA059

原料10#除尘

2022.9.1

25020

/

/

/

1.7

/

/

/

/

/

/

/

/

/

 

11

DA060

原料11#除尘

2022.9.1

17943

/

/

/

1.8

/

/

/

/

/

/

/

/

/

 

12

DA069

原料12#除尘

2022.9.1

515417

/

/

/

2.4

/

/

/

/

/

/

/

/

/

 

13

DA061

活性炭1#除尘

2022.9.2

50347

/

/

/

3.4

/

/

/

/

/

/

/

/

/

 

14

DA062

活性炭2#除尘

2022.9.2

25692

/

/

/

1.9

/

/

/

/

/

/

/

/

/

 

15

DA031

转炉上料除尘

2022.9.2

386306

/

/

/

2.4

/

/

/

/

/

/

/

/

/

 

16

DA041

连铸大包除尘

2022.9.2

454709

/

/

/

2.1

/

/

/

/

/

/

/

/

/

 

17

DA011

烧结配料除尘

2022.9.2

290801

/

/

/

1.2

/

/

/

/

/

/

/

/

/

 

18

DA013

烧结筛分除尘

2022.9.2

171644

/

/

/

3.0

/

/

/

/

/

/

/

/

/

 

19

DA030

转炉三次除尘

2022.9.2

1011613

/

/

/

2.0

/

/

/

/

/

/

/

/

/

 

20

DA037

矿渣粉磨除尘

2022.9.2

262951

18.2

2L

/

2.2

/

2L

/

/

/

/

/

/

/

 

21

DA012

烧结燃破除尘

2022.9.5

95917

/

/

/

3.3

/

/

/

/

/

/

/

/

/

 

22

DA014

烧结一混除尘

2022.9.5

19581

/

/

/

2.6

/

/

/

/

/

/

/

/

/

 

23

DA015

烧结二混除尘

2022.9.5

22474

/

/

/

3.5

/

/

/

/

/

/

/

/

/

 

24

DA021

1#喷煤收尘器

2022.9.5

121850

/

/

/

3.6

/

/

/

/

/

/

/

/

/

 

25

DA024

2#喷煤收尘器

2022.9.5

119816

/

/

/

3.1

/

/

/

/

/

/

/

/

/

 

26

DA035

原料块矿烘干除尘器

2022.9.5

118235

19.0

2L

/

2.7

/

2L

/

/

/

/

/

/

/

 

27

DA042

1#加热炉空烟

2022.9.5

36012

1.9

54

37

5.2

3.6

123

84

/

/

/

/

/

/

 

28

DA043

1#加热炉煤烟

2022.9.5

47370

1.8

57

38

5.2

3.5

115

78

/

/

/

/

/

/

 

29

DA044

2#加热炉空烟

2022.9.6

73206

3.9

36

27

2.8

2.1

34

26

/

/

/

/

/

/

 

30

DA045

2#加热炉煤烟

2022.9.6

78492

3.5

35

26

3.1

2.3

27

20

/

/

/

/

/

/

 

31

DA046

3#加热炉空烟

2022.9.5

32815

4.5

41

29

2.4

1.9

131

93

/

/

/

/

/

/

 

32

DA047

3#加热炉煤烟

2022.9.5

34204

3.9

43

31

1.6

1.2

112

81

/

/

/

/

/

/

 

33

DA048

4#加热炉空烟

2022.9.2

15302

5.4

31

26

2.1

1.8

75

63

/

/

/

/

/

/

 

34

DA049

4#加热炉煤烟

2022.9.2

28695

1.4

39

26

2.0

1.3

60

40

/

/

/

/

/

/

 

35

DA038

1#钢渣湿电除尘

2022.9.6

277030

/

/

/

3.7

/

/

/

/

/

/

/

/

/

 

36

DA027

2#钢渣湿电除尘

2022.9.6

277108

/

/

/

3.0

/

/

/

/

/

/

/

/

/

 

37

DA039

钢渣二次处理除尘

2022.9.6

205471

/

/

/

2.6

/

/

/

/

/

/

/

/

/

 

38

DA050

石灰窑受料槽除尘

2022.9.6

63640

/

/

/

3.8

/

/

/

/

/

/

/

/

/

 

39

DA052

石灰窑原料除尘

2022.9.6

150815

/

/

/

3.6

/

/

/

/

/

/

/

/

/

 

40

DA053

石灰窑成品除尘

2022.9.6

344577

/

/

/

3.2

/

/

/

/

/

/

/

/

/

 

41

DA060

微粉仓顶1#除尘

2022.9.8

3828

/

/

/

3.4

/

/

/

/

/

/

/

/

/

 

42

DA061

微粉仓顶2#除尘

2022.9.8

3186

/

/

/

3.2

/

/

/

/

/

/

/

/

/

 

43

DA062

微粉仓顶3#除尘

2022.9.8

3408

/

/

/

3.6

/

/

/

/

/

/

/

/

/

 

44

DA063

微粉仓顶4#除尘

2022.9.8

3240

/

/

/

2.4

/

/

/

/

/

/

/

/

/

 

45

DA064

微粉仓底除尘

2022.9.8

7691

/

/

/

3.3

/

/

/

/

/

/

/

/

/

 

46

DA040

除尘灰处理窑头及上料除尘

2022.9.8

137133

/

/

/

3.8

/

/

/

/

/

/

/

/

/

 

47

DA034

煤气发电锅炉脱硫

2022.9.16

/

/

/

/

/

/

/

/

/

/

/

/

/

<1级

 

48

DA009

烧结球团脱硫脱硝

2022.9.20

1517015

15.2

/

/

/

/

/

/

0.36

0.31

0.0007

0.0006

1.99

/

 

49

DA016

球团烘干机除尘

2022.9.20

75312

/

/

/

3.0

/

/

/

/

/

/

/

/

/

 

50

DA017

球团干燥一段除尘

2022.9.20

266703

/

/

/

2.6

/

/

/

/

/

/

/

/

/

 

51

DA018

球团环境除尘

2022.9.20

712687

/

/

/

2.6

/

/

/

/

/

/

/

/

/

 

52

DA059

钢渣卸车间除尘

2022.9.28

112493

/

/

/

2.3

/

/

/

/

/

/

/

/

/

 

 

22无组织废气污染物监测结果表

序号

生产设施编号/
无组织排放编号

监测日期

颗粒物(mg/m3)

(mg/m3)

非甲烷总烃(mg/m3)

二氧化硫(mg/m3)

氮氧化物(mg/m3)

HS(mg/m3)

铅及其化合物(μg/m3)

1

烧结脱硫脱硝氨水罐

2022.9.3

/

0.08

/

/

/

/

/

2

公司厂界

2022.9.7

0.338

/

1.52

/

/

/

/

3

烧结生产车间

2022.9.3

0.359

/

/

/

/

/

/

4

球团生产车间

2022.9.16

0.348

/

/

/

/

/

/

5

高炉生产车间

2022.9.3

0.344

/

/

/

/

/

/

6

转炉生产车间

2022.9.3

0.364

/

/

/

/

/

/

7

轧钢一车间

2022.9.2

0.305

/

/

/

/

/

/

8

轧钢二车间

2022.9.2

0.331

/

/

/

/

/

/

9

朝阳社区

2022.9.7-2022.9.8

/

/

/

0.011

0.019

0.001

0.0695

10

于家龙头村

2022.9.7-2022.9.8

/

/

/

0.014

0.015

0.001

0.0868

 

 

229废水污染物监测结果表

序号

排放口编号

排放口名称

监测日期

出口

PH(无量纲)

悬浮物(mg/L)

化学需氧量(mg/L)

氨氮(mg/L)

挥发酚(mg/L)

氰化物(mg/L)

流量(m3/h)

石油类(mg/L)

总铅(mg/L)

总砷(mg/L)

六价铬(mg/L)

总镉(mg/L)

总铬(mg/L)

总镍(mg/L)

总汞(mg/L)

1

 

1#高炉冲渣补水口

2022.9.3

7.3

19

16

0.618

未检出

未检出

/

/

/

/

/

/

/

/

/

2

 

2#高炉冲渣补水口

2022.9.3

7.1

18

18

0.608

未检出

未检出

/

/

/

/

/

/

/

/

/

3

 

1#高炉冲渣回用水池内

2022.9.3

/

/

/

/

未检出

/

/

/

/

/

/

/

/

/

/

4

 

2#高炉冲渣回用水池内

2022.9.3

/

/

/

/

未检出

/

/

/

/

/

/

/

/

/

/

5

 

1#高炉冲渣补水口

2022.9.7

7.2

18

13

0.671

未检出

未检出

/

/

/

/

/

/

/

/

/

6

 

2#高炉冲渣补水口

2022.9.7

7.1

15

15

0.658

未检出

未检出

/

/

/

/

/

/

/

/

/

7

 

1#高炉冲渣回用水池内

2022.9.7

/

/

/

/

未检出

/

/

/

/

/

/

/

/

/

/

8

 

2#高炉冲渣回用水池内

2022.9.7

/

/

/

/

未检出

/

/

/

/

/

/

/

/

/

/

9

 

1#高炉冲渣补水口

2022.9.14

7.1

16

24

0.655

未检出

未检出

/

/

/

/

/

/

/

/

/

10

 

2#高炉冲渣补水口

2022.9.14

7.1

19

23

0.616

未检出

未检出

/

/

/

/

/

/

/

/

/

11

 

1#高炉冲渣回用水池内

2022.9.14

/

/

/

/

未检出

/

/

/

/

/

/

/

/

/

/

12

 

2#高炉冲渣回用水池内

2022.9.14

/

/

/

/

未检出

/

/

/

/

/

/

/

/

/

/

13

 

1#高炉冲渣补水口

2022.9.21

7.2

12

18

0.439

0.01L

0.004L

/

/

/

/

/

/

/

/

/

14

 

2#高炉冲渣补水口

2022.9.21

7.1

13

19

0.394

0.01L

0.004L

/

/

/

/

/

/

/

/

/

15

 

1#高炉冲渣回用水池内

2022.9.21

/

/

/

/

0.01L

/

/

/

/

/

/

/

/

/

/

16

 

2#高炉冲渣回用水池内

2022.9.21

/

/

/

/

0.01L

/

/

/

/

/

/

/

/

/

/

17

DW001

烧结球团脱硫车间废水排放口

2022.9.21

7.3

18

24

/

/

/

/

0.16

0.2L

0.3L

/

/

/

/

/

18

DW003

轧钢一车间废水排放口

2022.9.21

/

/

/

/

/

/

/

/

/

0.3L

0.004L

0.05L

0.56

0.4

0.04L

19

DW004

轧钢一车间废水排放口

2022.9.21

/

/

/

/

/

/

/

/

/

0.0004

0.004L

0.05L

0.59

0.38

0.04L

20

 

1#高炉冲渣补水口

2022.9.28

7.3

18

16

0.455

未检出

/

/

/

/

/

/

/

/

/

/

21

 

2#高炉冲渣补水口

2022.9.28

7.2

15

12

0.598

未检出

/

/

/

/

/

/

/

/

/

/

22

 

1#高炉冲渣回用水池内

2022.9.28

/

/

/

/

未检出

/

/

/

/

/

/

/

/

/

/

23

 

2#高炉冲渣回用水池内

2022.9.28

/

/

/

/

未检出

/

/

/

/

/

/

/

/

/

/

24

YS001

雨水排放口1

2022.9.17

7.3

18

16

0.608

/

/

/

0.56

/

/

/

/

/

/

/

25

YS002

雨水排放口2

2022.9.17

7.0

19

15

0.524

/

/

/

0.54

/

/

/

/

/

/

/

26

YS003

雨水排放口3

2022.9.17

7.2

15

16

0.550

/

/

/

0.54

/

/

/

/

/

/

/

27

YS004

雨水排放口4

2022.9.17

7.3

18

15

0.674

/

/

/

0.50

/

/

/

/

/

/

/

 

第三季度噪声监测结果表

序号

监测项目

 

监测日期

检测结果(dB(A))

1

厂界环境噪声(昼间)

东厂界

2022.9.22

59.0

2

西厂界

2022.9.22

55.4

3

南厂界

2022.9.22

51.6

4

北厂界

2022.9.22

53.4

5

厂界环境噪声(夜间)

东厂界

2022.9.22

43.6

6

西厂界

2022.9.22

42.8

7

南厂界

2022.9.22

45.3

8

北厂界

2022.9.22

48.3

9

周围敏感点(昼间)

1#东小官村

2022.9.22

54.5

10

2#官庄村

2022.9.22

54.5

11

3#朝阳社区

2022.9.22

51.5

12

周围敏感点(夜间)

1#东小官村

2022.9.22

44.2

13

2#官庄村

2022.9.22

44.2

14

3#朝阳社区

2022.9.22

41.8

 

 


四、部分点位未监测原因

无。

Copyright © 2019 永锋集团有限公司    备案号:鲁ICP备15040286号-2